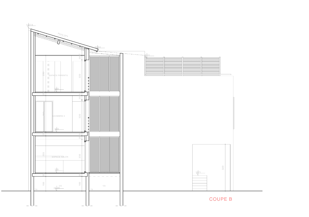
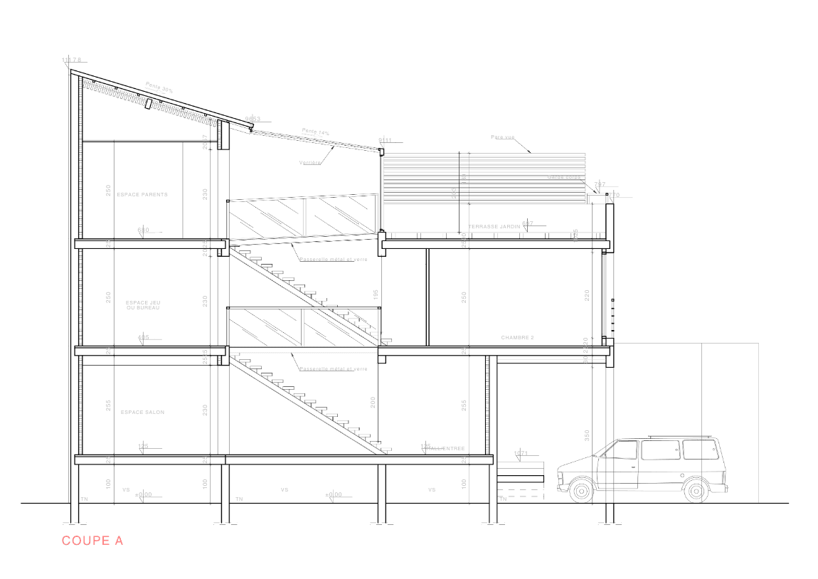
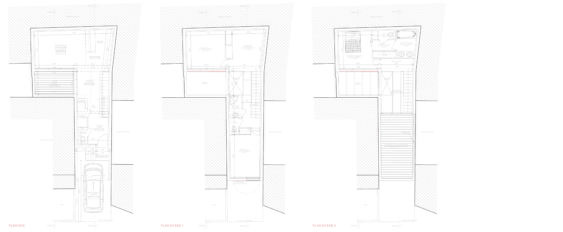
Le projet s’insère dans une rue étroite composé de petits immeubles d’un étage. Le volume adopte une écriture compacte et verticale conforme à l’emprise au sol limitée tout en restant à l’échelle du tissu existant. La façade enduite claire, associée au bois et au métal, propose une expression contemporaine mesurée.
L’organisation intérieure privilégie la lumière malgré la mitoyenneté. Les espaces se développent autour d’un puit de lumière créé, verticalement jusqu’à une terrasse en retrait, conçue comme une pièce extérieure intime au sommet de la maison. Cette séquence verticale — du socle ouvert au belvédère intime — transforme la parcelle étroite en parcours habité, où l’architecture cherche moins l’affirmation formelle que la production d’un espace protégé, lumineux et domestique.






