Équipement public MAISON DE RETRAITE à CLAPIERS (34) — projet d'architecte Reservoir Architecture, image 1
Équipement public MAISON DE RETRAITE à CLAPIERS (34) — projet d'architecte Reservoir Architecture, image 2
Équipement public MAISON DE RETRAITE à CLAPIERS (34) — projet d'architecte Reservoir Architecture, image 3
Équipement public MAISON DE RETRAITE à CLAPIERS (34) — projet d'architecte Reservoir Architecture, image 4
Équipement public MAISON DE RETRAITE à CLAPIERS (34) — projet d'architecte Reservoir Architecture, image 5

CLAPIERS (34)

MAISON DE RETRAITE

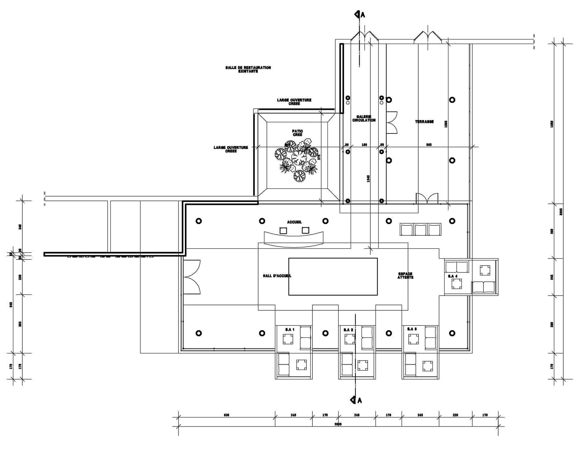
EXTENSION D’UN EPHAD AVEC CONSTRUCTION D’UN NOUVEAU HALL, RÉHABILITATION DES CHAMBRES, TRAITEMENT DES FACADES PAR ITE, AMÉNAGEMENT PAYSAGER

Le soin pensé comme lieu de vie

L’intention première de ce projet était de briser l’image institutionnelle du batiment pour offrir à l’occasion de sa réhabilitation et extension un environnement plus chaleureux et sécurisant. L’architecture reste horizontale et apaisée, le projet s’inscrit dans la pente comme une extension naturelle du terrain, offrant à chaque résident lumière, vues lointaines et relation directe à l’environnement paysager existant.

Le socle minéral ancre le bâtiment dans le site tandis que les volumes enduits clairs et les filtres bois issus du nouveau projet composent une écriture contemporaine, chaleureuse et domestique, loin de l’image institutionnelle.

A cela s’est accompagné une reflexion paysagère particulière afin de récréer une entrée- jardin sensorielle.

LieuClapiers (34)
Maitre d’OuvragePrivé
MissionComplète ( projet arreté en APS)
Surface4 000 m2
Budget travaux (estimation)4 000 000 € HT
Année2012