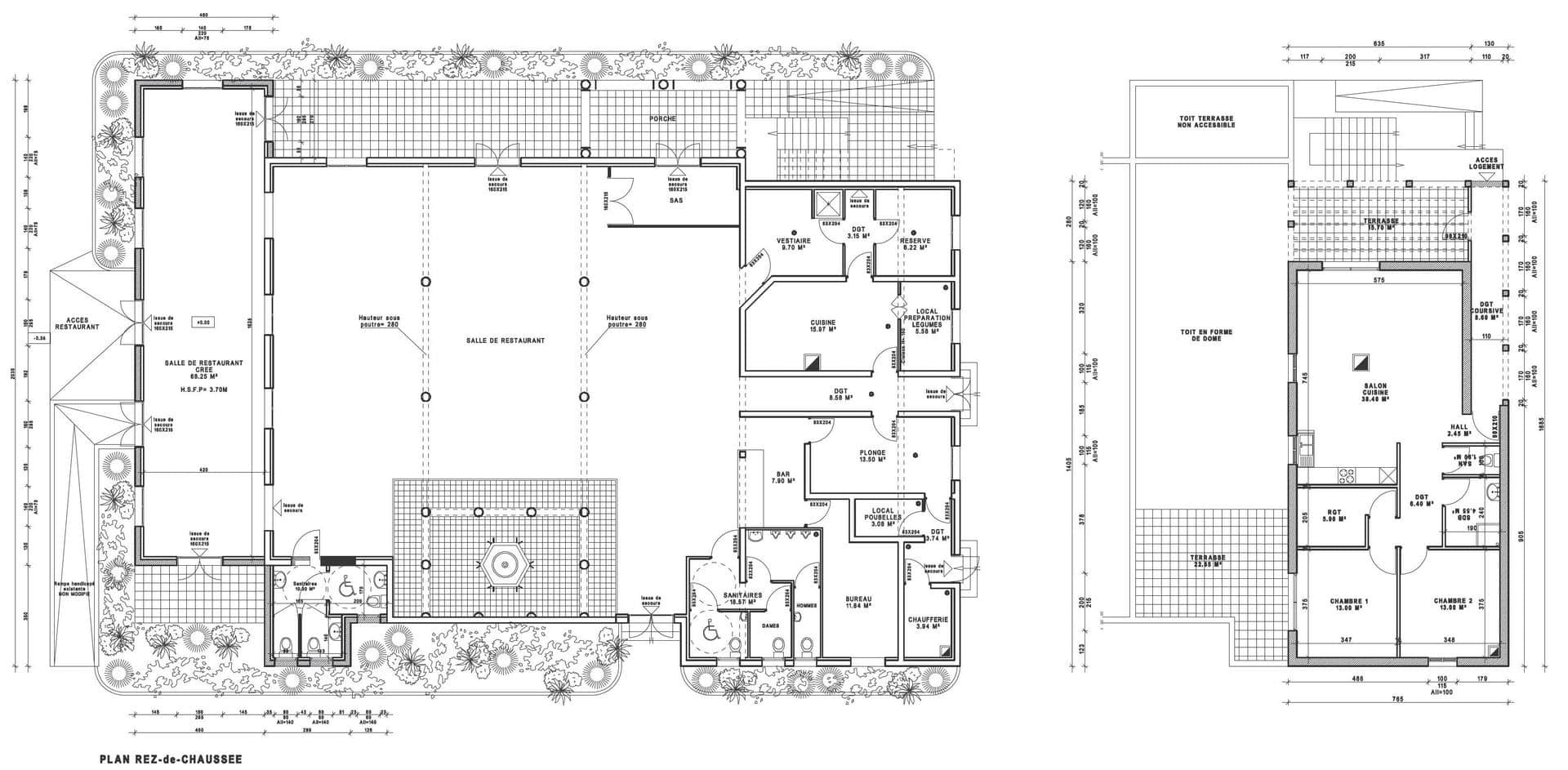
Le projet consistait en l’extension d’un restaurant et la création d’un logement de fonction dans un environnement d’activités dominé par des volumes industriels en pleine ZI.
La facade d’accueil est repensée : L’intention consiste à introduire une présence identifiable sans excès formel. Le bâtiment adopte une volumétrie simple et compacte inspirée des architectures méditerranéennes : enduit clair, percements limités et façades sobres.
La façade principale introduit une référence tunisienne plus explicite à travers les arcs et le motif de faïence bleue. Le décor reste contenu dans une composition rigoureuse afin d’éviter l’effet pastiche et d’affirmer une identité lisible.
LieuGarons (30)
Maitre d'OuvragePrivé
MissionComplète
Surface591 m2
Année2008



